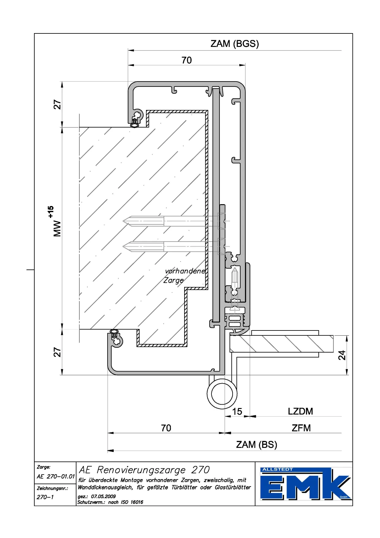
Reno-Umfasszargen mit Wanddickenausgleich Kantenradius 6mm
- Zargenausführung 2-schalig zum nachträglichen Einbau
- Wanddickenausgleich -5 / +20mm
- Kantenradius 6mm
- Spiegelbreite 70/70 – Umbug 27mm
- 3-seitige Wandanschlussdichtung Farben grau / weiß / schwarz
- Oberflächen in RAL / NCS / Eloxal
- Bandsystem der Simonswerk-Serien V 8600 / VX 7521 3D / Tectus – auch einsetzbar
Materialstärke 2-3mm ( an tragenden Teilen 3mm )
PDF Download